Двустаен апартамент - София, Младост 4
|
Имот номер: 1481 |
![]() |
Описание
Компас пропърти предлага двустаен апартамент в гр. София, ЖК МЛАДОСТ 4!
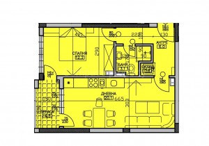
ЧИСТА ЖИЛИЩНА ПЛОЩ: 52,72 квадратни метра. РАЗПРЕДЕЛЕНИЕ: антре, баня с тоалетна, прилежаща тераса към спалня и кухненски бокс с дневна. ОСОБЕНОСТИ: Етаж 2 от 8. Продава се на шпакловка и замазка. Очаквано разрешение за ползване - март 2015г. Отопление- ТЕЦ. Строителство тухла. Луксозни общи части. ПРЕДИМСТВА: Жилището е със съвременно, просторно разпределение, на тиха и спокойна улица, в близост до централен булевард.
■ Много добра локация.
■ топлоефективност и топлоизолация по цялата сграда.
■ петкамерен PVC профил.
■ В близост до „Бизнес Парк София”, кино „Арена”, магазините „Технополис” и „Комо”, както и до околовръстния път.
Сградата разполага различни по големина апартамент, като отделно има възможност за закупуване на гараж или паркомясто.
Номер на оферта:1271 За повече информация се обадете на 0899 946 205. |
Особености |
Галерия
|
Запитване
|
































