Двустаен апартамент - София, Манастирски ливади - запад
|
Имот номер: 1598 |
![]() |
Описание
Компас пропърти Ви предлага за продажба двустаен апартамент в кв. Манастирски ливади - запад!
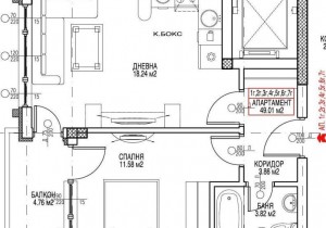
ЧИСТА ЖИЛИЩНА ПЛОЩ: 49 квадратни метра.
РАЗПРЕДЕЛЕНИЕ: Състои се от дневна с кухненски бокс, спалня, баня с тоалетна, балкон с излаз от двете стаи, мазе - 2 кв.м.
ОСОБЕНОСТИ: 4 етаж от 8. Изложение - запад. Отопление - газ. Начало на строителството - юни 2015, срок за предаване - юни 2017.
ПРЕДИМСТВА: Тихо и спокойно място, в близост до бул. България, болница, медицински център, МОЛ, търговски вериги . Възможност за закупуване на гараж или гаражна клетка.
Последни 2 свободни апартамента в сградата!
Номер на оферта: 1387
За повече информация се обадете на 0899946205. |
Особености |
Галерия |
Запитване |






























