Двустаен апартамент - Пловдив, Кършияка ул. Васил Априлов
|
Имот номер: 2055 |
![]() |
Описание
Компас Пропърти предлага за продажба двустаен апартамент в кв. Кършияка, до Била!
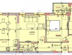
ЧИСТА ПЛОЩ: 43 квадратни метра, отделно мазе. РАЗПРЕДЕЛЕНИЕ: хол с кухня и трапезария, спaланя с тераса, обща и с хола, баня с тоалетна, антре. ОСОБЕНОСТИ: Етаж 14 от 18. Построен през 1986година. Изложение – запад. Отопление: ТЕЦ. Два асансьора за входа. За ремонт.
ПРЕДИМСТВА: Жилището е с функционално разпределение и правилни помещения. Свободно паркиране пред блока. Сред зеленина и разполага с места за отдих и игри. Много близо е до супермаркет "Била", училища и детски градини,преди моста на река " Марица".
Оферта номер: 1824 За повече информация: 0897823706 |
Особености |
Галерия
|
Запитване
|
































