Two bedroom apartment - Sofia, Suha reka
|
Property ID: 2222 |
![]() |
Description
Compass Property offers you a twobedroom apartment for sale in the Suhata Reka district, next to Cherkovna St. and Mardrid Blvd.!
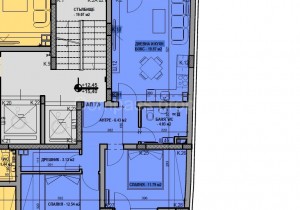
LIVING AREA: 81 square meters.
DISTRIBUTION: entrance hall, living room with kitchenette and balcony, bedroom with balcony, shared with second bedroom with wardrobe, bathroom with toilet.
FEATURES: 5th floor of 9. Exposure - south/north. Heating: electricity.
The building is under construction and will be completed in mid-2024.
The apartments are handed over with putty and screed, installed external door, keys and sockets.
Building with one entrance and 2-4 apartments per floor.
Parking spaces are available in the underground level of the building / access via a lift/, connected by a warm connection - a staircase and an elevator to the upper levels of the building.
Fully finished common parts. Controlled access. High class elevators - 2 pcs.
ADVANTAGES:
- convenient access to the most active points of the city - metro;
- well-developed residential area - next to main roads, shopping centers;
- proximity to park spaces;
- innovative and quality implementation.
Deferred payment scheme. Other one- and three-room apartments are available in the building.
For more information call 0897823706. |
Specifications |
Gallery
|
Feedback
|
































