Two bedroom apartment - Sofia, Manastirski livadi - east
|
Property ID: 1992 |
![]() |
Description
Compass property offers two-bedroom apartment for sale in a building under construction in Manastirski livadi - east!
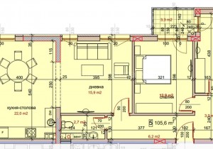
RESIDENTIAL AREA: 106 square meters. FEATURES: Permission to use - December 2019. Provided: intercom, security system, internet, TV wiring, external and internal doors, radiators, without boiler. Completely finished common parts. Controlled Access.
The apartment is on floor 2 of 6. Heating: gas. Exposure - west / south.
The investor of the building is a proven company with traditions and characteristic, stylish facades.
The entrance has 4-5 functional and properly distributed apartments per floor. European standard of quality: luxury common parts, lift, ceramic bricks WIENERBERGER, hydro and thermal insulation, German PVC window frames, armored front door.
ADVANTAGES: quiet street! Settled area! The reion offers a good standard of living, located in one of the elite districts of Sofia within walking distance from the center.
Very close to ´Todor Kableshkov´ Street, bus stops 65, 73, 74, 76, 204, trolley 8, grocery stores (Lidl, Dar). Nearby are the Mall ´Bulgaria´, BILLA, JUMBO.
There are underground parking garage connected by a walkway - staircase and elevator to the upper levels.
Offer ID: 1775 For more information, call 0897823706
|
Specifications |
Gallery
|
Feedback
|

































