Четиристаен апартамент - София, Бели брези
|
Имот номер: 2005 |
![]() |
Описание
Компас пропърти предлага четиристаен апартамент за продажба в новострояща се, луксозна сграда на на 400 метра от спирка на метрото „Цар Борис III” !
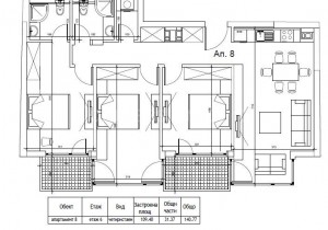
ЖИЛИЩНА ПЛОЩ: 109квадратни метра. РАЗПРЕДЕЛЕНИЕ: Входно антре, баня с тоалетна, три спални, едната с баня, всекидневна с кухнески бокс, два балкона, склад, отделно тоалетна.
ОСОБЕНОСТИ: Апартаментът е на етаж 6 от 7. Отопление: ТЕЦ. Изложение – югзапад. Апартaментите се предават на шпакловка и замазка. Предвидени са: домофон, СОТ инсталация, интернет, TV окабеляване, пощи. Напълно завършени общи части. Контролиран достъп. За всеки един от апартаментите са осигурени индивидуални измервателни уреди за електроенергия, монтирани извън сградата, водомери за студена и топла вода и топломери в общите коридори.
Инвеститор на сградата е доказана фирма с традиции и с характерни стилни фасади.
Сградата е с един вход, с по 2-3 функционални и правилно разпределени апартамента на етаж. Европейски стандарт на качество: луксозни общи части, асансьор KONE, керамични тухли WIENERBERGER, хидро- и топлоизолация, окачена фасада от HPL панели, немска PVC дограма - троен стъклопакет, блиндирана входна врата.
В момента е в процес на строителство. Ще бъде завършена края на 2020г.
ПРЕДИМСТВА: Комуникативно място, само на 400 метра от спирка на метрото „Цар Борис III” в близост до Пазар Красно село.
На пешеходно разстояние има училища, детски градини, аптеки, магазини, и спирка на метрото от третия метро диаметър.
Бъдещите обитатели имат бърз достъп до централните части на града. Придвижването с автомобил е удобно, поради
комуникативното местоположение до основните пътни артерии бул. „Цар Борис III” и бул. „България“. Градският транспорт е добре
уреден, посредством автобуси, тролейбуси, трамваи и бъдеща спирка на метрото. По бул. България и бул. Гоце Делчев са изградени
велоалеи, осигуряващи лесен достъп на велосипедистите до Южен парк и центъра на София.
Възможност за закупуване на гаражи и паркоместа.
Схема на плащане: 25% от сумата при сключване на предварителен договор за продажба 15% от сумата на кота +8.85 метра
25% от сумата на кота било
15% от сумата на поставена дограма
10% от сумата на направена мазилка
10% от сумата на акт 15
Оферта 1784 За повече информация се обадете на 0898453334. |
Особености |
Галерия
|
Запитване
|
































